Pour être sûr de faire un bon investissement, certaines vérifications sont nécessaires avant l’achat d’un appartement. Pierre Marlair & Co vous détaille les points qui doivent retenir votre attenti...
Surface commerciale ou de bureaux de +/-220 m²
Local commercial à 5002 Saint-Servais
€ 349.000
ID du bien : 2463
- Superficie220 m2
- Surface terrain396 m2
Documents de références
Téléchargez le plan cadastral Téléchargez l'axe de ruissellement Téléchargez l'aléa inondation Téléchargez l'extrait BDES Téléchargez le croquis détaillé Téléchargez le descriptifDétail
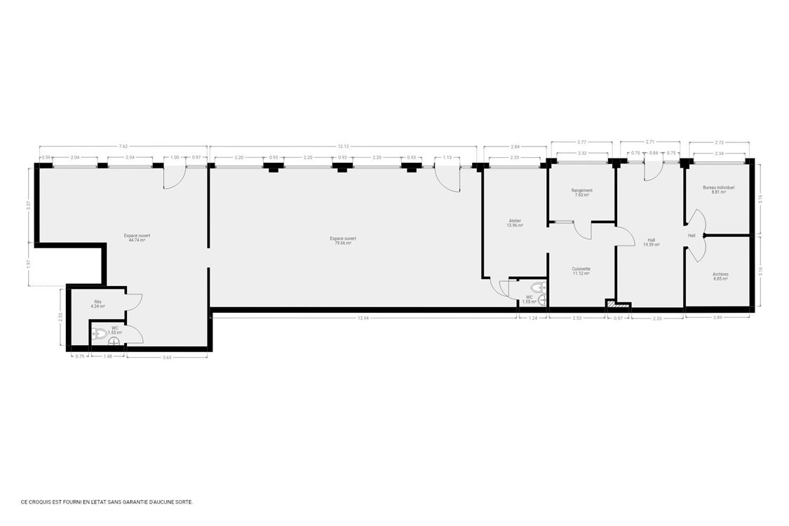
Un descriptif très complet avec documents téléchargeables est visible sur www.pierremarlair.be. Visite sur RDV en appelant le 081.840.840 ou le 0498.82.53.92. Un emplacement stratégique pour faire décoller votre projet ! À Saint-Servais, tout près du centre de Namur et des grands axes, cette surface professionnelle de ±220 m² combine visibilité maximale et modularité. Grâce à ses cinq vitrines plein Sud, l’espace bénéficie d’une belle luminosité et d’un fort passage. Idéal pour un commerce, un bureau ou une activité mixte. Avec trois accès distincts et trois numéros postaux, il est possible de diviser facilement l’espace selon vos besoins. Parfait pour accueillir plusieurs entités ou créer différentes zones de travail. Parking gratuit juste en face, pour simplifier la vie de vosclients et collaborateurs. Bien équipé : deux compteurs électriques, convecteurs électriques et air conditionné assurent un confort optimal. Le tout dans une petite copropriété bien entretenue, sans syndic professionnel et avec très peu de charges communes (assurance incendie + vidange de fosse septique). Offre complète, emplacement stratégique : tout y est !
- Année de construction1998
- ChauffageLes ventilo-convecteurs
- Revenu cadastral2099€
- Salles d'eau0
- Garage : Non

Partager ce contenu