Pour être sûr de faire un bon investissement, certaines vérifications sont nécessaires avant l’achat d’un appartement. Pierre Marlair & Co vous détaille les points qui doivent retenir votre attenti...
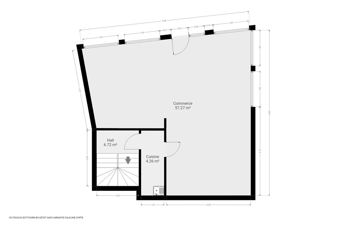
Commerce d'une superficie totale de 117m2
Local commercial à 5170 PROFONDEVILLE
€ 240.000
ID du bien : 2524
- Superficie117 m2
Documents de références
Téléchargez le descriptif Téléchargez le plan Téléchargez les informations urbanistiques Téléchargez le plan cadastral Téléchargez le plan de secteurDétail
Un descriptif très complet avec documents téléchargeables est visible sur www.pierremarlair.be. Visite pendant les heures d’ouverture du bureau, sur RDV uniquement en appelant le 081.840.840. Vous recherchez un espace fonctionnel et bien situé pour votre activité professionnelle ou commerciale ? Découvrez cette superbe surface d’angle dans le cœur du village de Profondeville, idéalement située au centre du village et disposant d’une surface showroom de +/- 56, parfaits pour des bureaux, professions libérales ou commerces. Le local est d’une superficie totale de +/- 117 m² est proposé à 240.000 EUR. Il est composé comme suit : rez : espace show-room, kitchenette. Sous-sol : caves propres et saines d’une superficie de 38 m2. Le local dispose d’un emplacement de parking privatif. Idéalement situés au rez-de-chaussée d’une copropriété impeccable, parfaitement entretenue et gérée, ces espaces bénéficient d’une excellente visibilité et d’une belle luminosité grâce à leurs grandes vitrines (+/- 23m2 au total). L’aménagement intérieur peut être repensé selon vos besoins, offrant une flexibilité totale pour adapter les lieux à votre activité. Une opportunité rare pour implanter votre entreprise dans un environnement professionnel de qualité. Contactez-nous dès maintenant pour organiser une visite et découvrir tout le potentiel de ces espaces.
- Année de construction1999
- ChauffageNon communiqué
- Salles d'eau0
- Garage : Non

Partager ce contenu