Pour être sûr de faire un bon investissement, certaines vérifications sont nécessaires avant l’achat d’un appartement. Pierre Marlair & Co vous détaille les points qui doivent retenir votre attenti...
Maison d’habitation sur un terrain de 2,06 ares transformée en 2 appartements
Villa/maison/ferme à 5170 PROFONDEVILLE
€ 320.000
ID du bien : 2571
- Superficie195 m2
- Nombre de Chambres4
- Surface terrain206 m2
Documents de références
Téléchargez le plan cadastral Téléchargez le courrier Fluxys Téléchargez l'extrait BDES Téléchargez le PEB Téléchargez les croquis détaillés Téléchargez le descriptifDétail
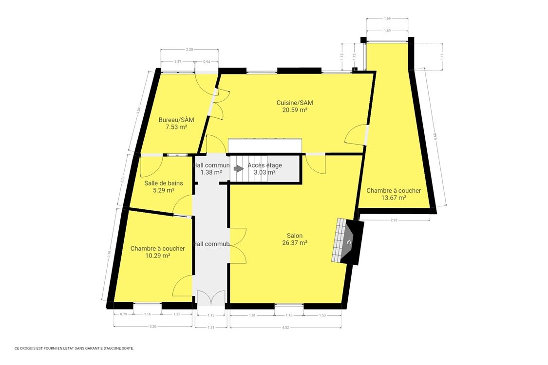
Un descriptif très complet avec documents téléchargeables est visible sur www.pierremarlair.be. Visite sur RDV uniquement en appelant le 081.840.840. À vendre, ancienne maison d’habitation unifamiliale datant de 1850-1874, transformée en 1977 en deux appartements indépendants, idéalement située dans le centre de Profondeville. Le bien se situe sur un terrain de 2,06 ares et bénéficie de locataires fiables générant des revenus stables, 700 EUR pour l’appartement du rez-de-chaussée et 600 EUR pour celui du premier étage, hors consommations personnelles (aucune charges communes). À noter : un passage latéral sur le côté gauche de l’immeuble permet de rejoindre l’arrière du bâtiment. Le rez-de-chaussée se compose d’une cuisine/salle à manger, d’un grand salon, de deux chambres, d’une salle de bains, d’une pièce polyvalente pouvant être un bureau ou une salle à manger, d’une terrasse, d’un jardinet emmuré et d’un abri. Il offre également un accès aux caves. Le premier étage comprend un hall, une cuisine, une arrière-cuisine (ou une pièce de rangement/bureau), un salon/salle à manger, deux chambres, une salle de bains et un accès à un grenier de rangement. L’immeuble dispose de deux compteurs électriques, de deux chaudières au mazout avec citernes séparées, ainsi que d’un compteur général d’eau avec décompteur individuel. Une régularisation urbanistique est actuellement en cours auprès du service de l’urbanisme de la commune de Profondeville. Au vu des documents et éléments historiques disponibles, il est vraisemblable que cette régularisation sera obtenue, confirmant que la division a été opérée avant 1994. Cette maison est particulièrement polyvalente. Elle représente une excellente opportunité pour un investisseur souhaitant bénéficier de revenus locatifs immédiats. Elle peut également convenir à une famille : un parent peut garder un enfant à proximité tout en lui laissant son indépendance, ou un enfant peut accueillir un parent. Cette configuration a d’ailleurs été utilisée avec succès de cette manière pendant de nombreuses années. Le bien offre à la fois le charme de l’ancien et une solution flexible adaptée aux besoins familiaux ou d’investissement.
- ChauffageNon communiqué
- Revenu cadastral577€
- Salles d'eau2
- Garage : Non
Certification énergétique
Performance énergétique
474
Date de fin du certificat
20/08/2035
Code unique
20250820014503
Emission CO2
117

Partager ce contenu