Pour être sûr de faire un bon investissement, certaines vérifications sont nécessaires avant l’achat d’un appartement. Pierre Marlair & Co vous détaille les points qui doivent retenir votre attenti...
Maison de commerce
Immeuble de rapport à 5000 Namur
€ 625.000
ID du bien : 2574
- Nombre de Chambres3
Documents de références
Téléchargez la cartographie Téléchargez l'extrait BDES Téléchargez le courrier Fluxys Téléchargez l'aléa inondation Téléchargez l'axe de ruissellement Téléchargez le descriptif Téléchargez les croquisDétail
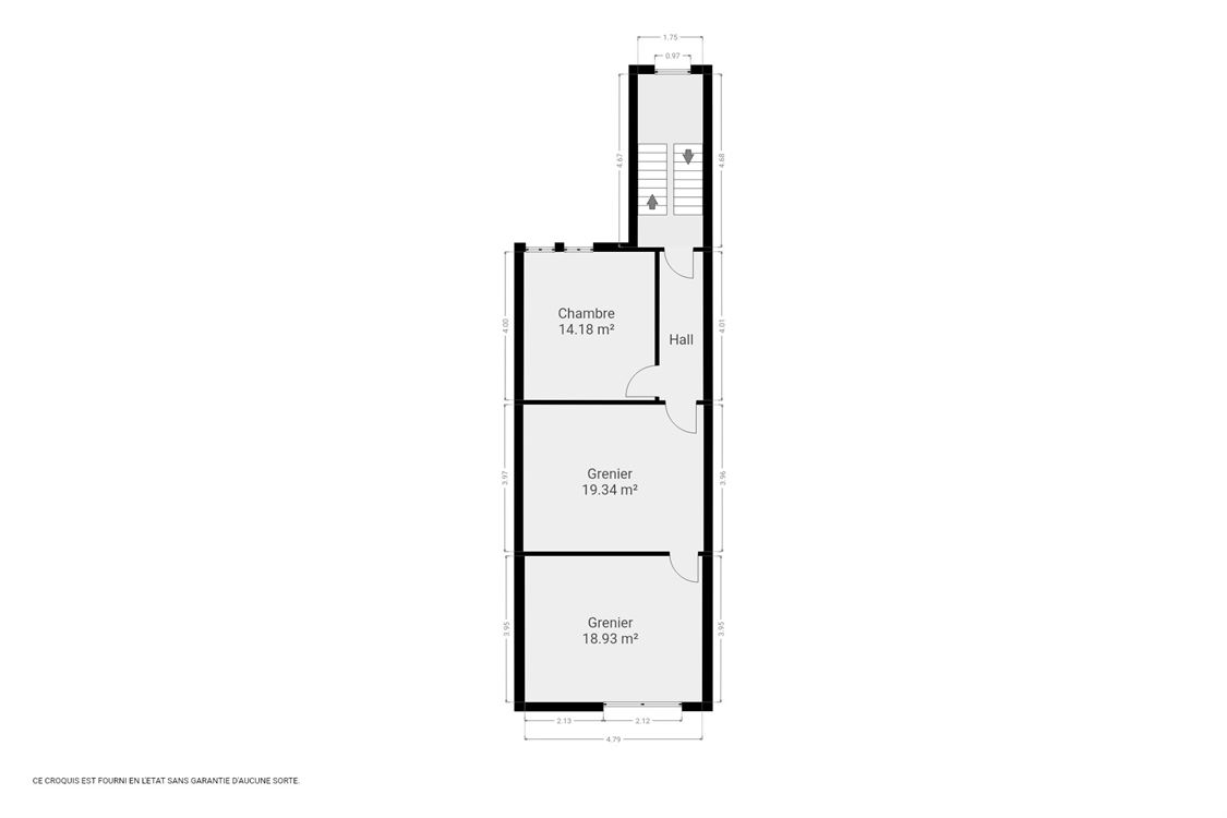
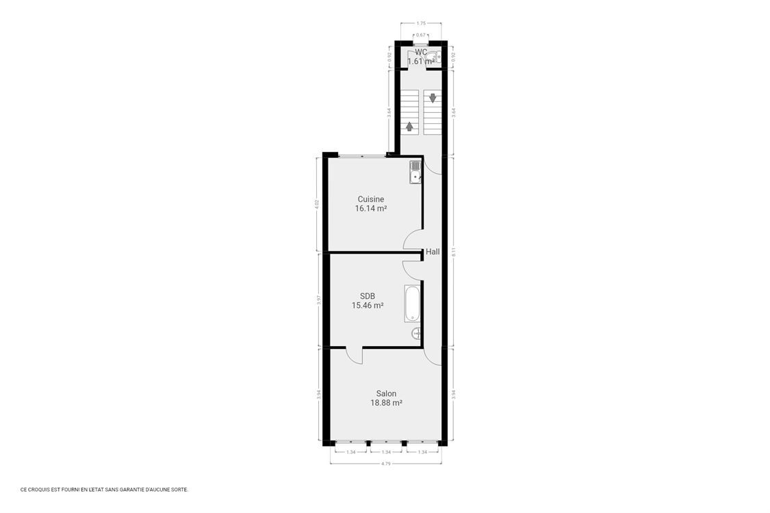
Un descriptif très complet avec documents téléchargeables est visible sur www.pierremarlair.be. Visite sur RDV uniquement en appelant le 081.840.840. Idéalement située, en plein cœur de Namur, à proximité des parkings BEFFROI et CONFLUENCE, dans le prolongement de la rue commerçante principale de Namur et en face de l’INNO, cette maison de commerce disposant d’une magnifique façade avant et d’éléments architecturaux d’époque peut être à vous ! L’entièreté de l’immeuble est actuellement loué à un salon de coiffure installé depuis 2004 ! Il est composé comme suit : sous-sol : caves et réserve. Rez-de-chaussée : salon et accès aux étages. Etage 1 : bureaux et local poubelles. Etages 2 et 3 : Appartement du commerçant composé d’un salon, d’une cuisine, d’une salle de bains, d’une chambre, d’un WC sur le palier, de halls et de greniers. Nous épinglons : châssis DV récents, toiture refaite récemment, chauffage au gaz naturel, travaux à réaliser pour lui rendre son éclat d’antan. Une opportunité rare !
- ChauffageC.C. au gaz
- Revenu cadastral4010€
- Salles d'eau1
- Garage : Non

Partager ce contenu