Pour être sûr de faire un bon investissement, certaines vérifications sont nécessaires avant l’achat d’un appartement. Pierre Marlair & Co vous détaille les points qui doivent retenir votre attenti...
Studio meublé dans le centre de Namur
Appartement à 5000 Namur
€ 99.000
ID du bien : 2614
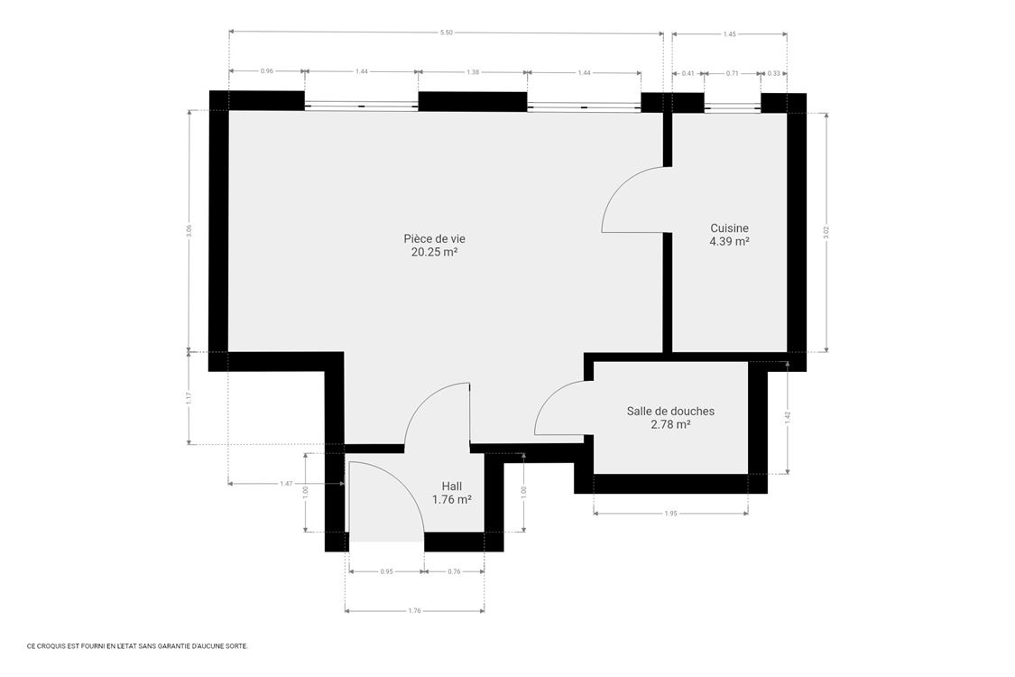
- Superficie32 m2
Documents de références
Certificat énergétique Aléa inondation Banque de données de l'état des sols Fluxys Croquis DescriptifDétail
Un descriptif très complet avec documents téléchargeables est visible sur www.pierremarlair.be. Visite uniquement sur RDV en appelant le 081.840.840. Situé en plein coeur de Namur, ce studio meublé est idéal pour un investisseur ou pour des parents à la recherche d’un logement pour leur adolescent. Il est composé comme suit pour une superficie nette habitable de +/- 32 m² : 5e étage : hall d’entrée, pièce de vie avec espace « chambre », salle de douches, cuisine. Loyer potentiel : 525 EUR. Nous retenons : chauffage central au mazout, PEB E, IE conforme, châssis DV en bois, situation idéale, ascenseur… À vos téléphones !
- Année de construction1968
- ChauffageC.C. au mazout
- Revenu cadastral570€
- Salles d'eau1
- Garage : Non
Certification énergétique
Performance énergétique
371
Date de fin du certificat
19/09/2035
Code unique
20250919016804
Emission CO2
92

Partager ce contenu