Pour être sûr de faire un bon investissement, certaines vérifications sont nécessaires avant l’achat d’un appartement. Pierre Marlair & Co vous détaille les points qui doivent retenir votre attenti...
Studio avec terrasse
Studio à 5100 DAVE
€ 575
ID du bien : 2642
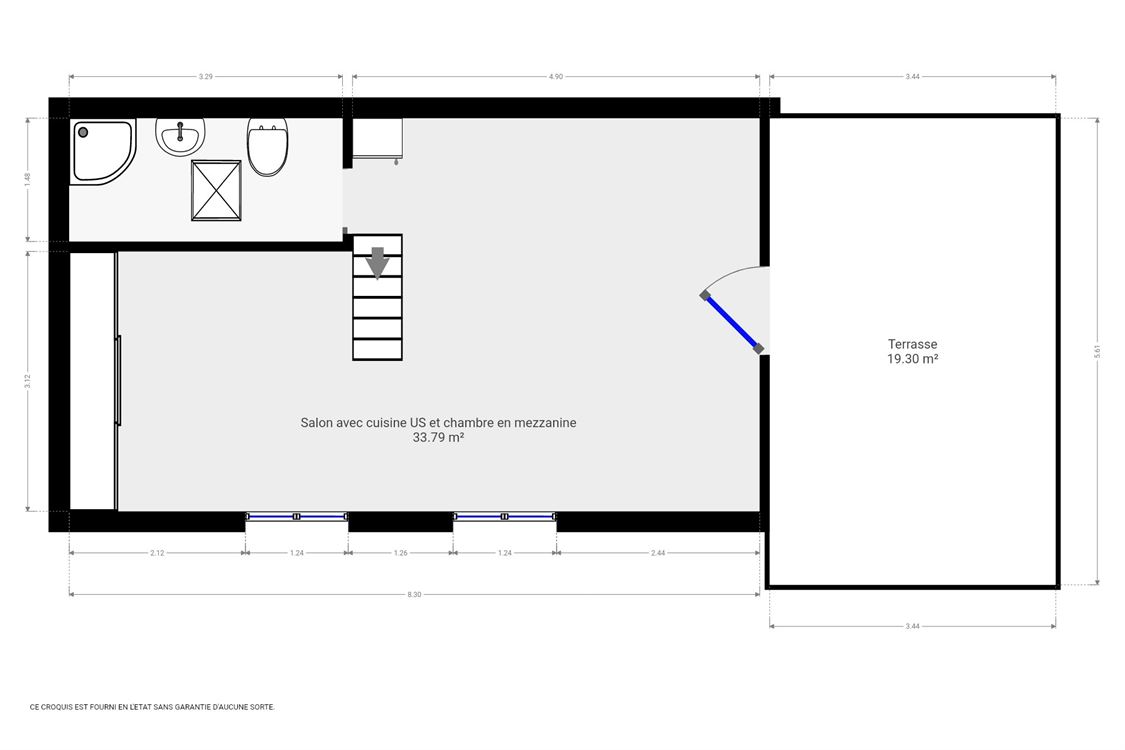
- Superficie39 m2
Détail
Un descriptif très complet avec documents téléchargeables est visible sur www.pierremarlair.be. Prise de RDV en ligne via notre site internet (onglet « prendre rendez-vous »). Charmant studio de ± 39 m² entièrement rénové, situé à Dave, offrant un agréable espace de vie lumineux avec cuisine américaine équipée, une salle de douches et un coin couchage aménagé en mezzanine. Le bien bénéficie également d’une belle terrasse de ± 19 m² ainsi que d’une remise. Chauffage via poêle à pellets. À épingler : PEB E, châssis double vitrage bois et PVC, poêle à pellets, terrasse idéalement orientée Ouest. Forfait mensuel de 20 EUR pour les consommations privatives d’eau. Provision de 100 EUR pour l’électricité. État des lieux d’entrée amiable. Libre immédiatement.
- Surface living34 m2
- ChauffagePellet
- Salles d'eau1
- Garage : Non
- Terrasse : 19 m2
Certification énergétique
Performance énergétique
392
Date de fin du certificat
16/04/2031
Code unique
20210416010536
Emission CO2
13

Partager ce contenu