Pour être sûr de faire un bon investissement, certaines vérifications sont nécessaires avant l’achat d’un appartement. Pierre Marlair & Co vous détaille les points qui doivent retenir votre attenti...
Maison 5 ch. avec bureau + espace profession libérale
Villa/maison/ferme à 5004 BOUGE
VENDU
ID du bien : 2390
- Superficie213 m2
- Nombre de Chambres5
- Surface terrain1.467 m2
Détail
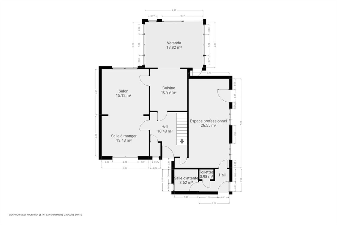
Un descriptif très complet avec documents téléchargeables est visible sur www.pierremarlair.be. Prise de RDV en ligne via notre site internet (onglet « prendre rendez-vous »). Situé à Bouge, sur l’un des axes stratégiques de la région, à proximité immédiate des axes autoroutiers, de tous les commerces et services, nous vous proposons ce bel immeuble mixte (maison et bureau ou cabinet médical/paramédical ou …) dont la polyvalence rencontrera les attentes des plus exigeants de nos clients. Développant une superficie habitable de +/- 213 m2 (superficie utile de +/- 272 m2), elle est composée comme suit sur 4 niveaux : sous-sol : garage, cave de rangement, chaufferie. Rez-de-chaussée : hall d’entrée, water-closet indépendant, salon, salle-à-manger, cuisine, véranda. 1er étage : 2 chambres, une salle de douches, un bureau. 2ième étage : 3 chambres, un water-closet indépendant et une salle de douches. La partie professionnelle dispose d'une zone de parkings et est composée d’un cabinet, d’une salle d’attente ainsi que d’un water-closet indépendant. Nous épinglons : panneaux photovoltaïques, panneau solaire, espace professionnel, PEB D, chauffage central au mazout, situation idéale, parking,… À vos téléphones !
- Surface living29 m2
- ChauffageC.C. au mazout
- Revenu cadastral1219€
- Salles d'eau2
- Garage : Oui
Certification énergétique
Performance énergétique
258
Date de fin du certificat
07/05/2035
Code unique
20250507007148
Emission CO2
63

Partager ce contenu