Pour être sûr de faire un bon investissement, certaines vérifications sont nécessaires avant l’achat d’un appartement. Pierre Marlair & Co vous détaille les points qui doivent retenir votre attenti...
Appartement 2 chambres au RDC avec jardin
Appartement à 5070 VITRIVAL
VENDU
ID du bien : 2397
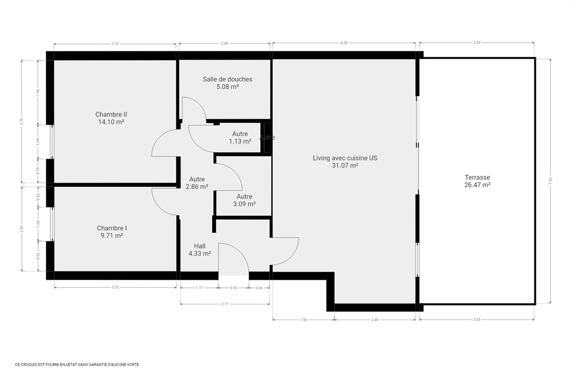
- Superficie87 m2
- Nombre de Chambres2
Détail
Un descriptif très complet avec documents téléchargeables est disponible sur le site www.pierremarlair.be. Visites uniquement sur RDV en appelant le 081.840.840. Spoiler : ils risquent de partir plus vite qu’un café un lundi matin ! Deux immeubles tout juste sortis de terre, 12 appartements flambant neufs, et une belle opportunité d’acheter un bien hautement confortable sans sacrifier son budget. Situé à proximité des axes routiers, des commodités, des commerces, ces appartements bénéficient d’un extérieur (jardin ou balcon). Ils sont composés comme suit, pour une superficie habitable entre 87 et 90 m2 : hall d’entrée avec coin vestiaire, pièce de vie de +/- 32 m2 avec cuisine US, hall de nuit, 2 chambres, salle de douches, water-closet indépendant et buanderie/chaufferie. Nous épinglons : performances énergétiques soignées (A ou B estimé), IE conformes, ascenseur, chauffage sol, compteurs individuels, greniers de rangement confortables, équipements et finitions de qualité, vue dégagée, jardin commun, ... Vente sous régime TVA à 6% (construction) et des droits d’enregistrement à 3% ou 12,5% (terrain). Greniers et parkings extérieurs en supplément (obligatoire). On vous fait visiter avant que votre futur chez-vous ne devienne le coup de cœur d’un autre !
- Surface living31 m2
- Année de construction2024
- ChauffageChauffage par le sol
- Salles d'eau1
- Garage : Non
- Terrasse : 26 m2

Partager ce contenu