Pour être sûr de faire un bon investissement, certaines vérifications sont nécessaires avant l’achat d’un appartement. Pierre Marlair & Co vous détaille les points qui doivent retenir votre attenti...
Maison 4ch. avec superbe vue
Villa/maison/ferme à 5537 BIOUL
OPTION
ID du bien : 2492
- Superficie123 m2
- Nombre de Chambres4
- Surface terrain768 m2
Documents de références
Plan cadastral Plan de secteur Aléa inondation Certificat énergétique Plan DescriptifDétail
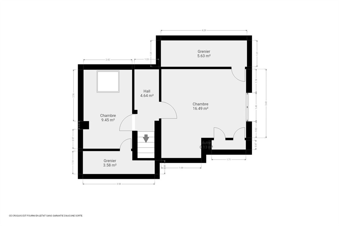
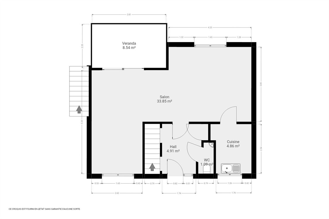
Un descriptif très complet avec documents téléchargeables est visible sur www.pierremarlair.be. Visite sur RDV uniquement en appelant le 081.840.840. À Bioul, dans un cadre paisible et verdoyant, cette maison 4 façades offre une vue panoramique exceptionnelle sur la campagne environnante. Édifiée en 1968 sur un terrain de 7,68 ares, elle développe environ 123 m² habitables et constitue une belle opportunité pour une famille à la recherche de calme et d’un nouveau nid confortable. L’habitation se compose de quatre chambres, d’un séjour lumineux de 34 m², d’une cuisine fonctionnelle et d’une salle de bains avec baignoire. Les pièces sont réparties sur trois niveaux et disposent d’espaces de rangement (garage, greniers). Chauffée par une chaudière à condensation VIESSMANN alimentée au mazout, la maison dispose d’un système de chauffage central performant. La citerne, enterrée et d’une capacité de 3.000 litres, est conforme aux normes environnementales. Le PEB de l’habitation est D alors qu’il est encore possible d’améliorer aisément l’aspect énergétique de la maison. L’orientation sud-ouest à l’arrière permet de profiter pleinement du jardin ou d’une future terrasse. Le bien est baigné de lumière l’après-midi. L’installation électrique devra être remise en conformité d’ici 2026. Un bien complet, offrant un cadre de vie exceptionnel, libre d’occupation et prêt à accueillir ses nouveaux propriétaires.
- Surface living34 m2
- Année de construction1968
- ChauffageC.C. au mazout
- Revenu cadastral644€
- Salles d'eau1
- Garage : Oui
- Terrasse : 8 m2
Certification énergétique
Performance énergétique
317
Date de fin du certificat
08/11/2027
Code unique
20171108020301
Emission CO2
79

Partager ce contenu