Pour être sûr de faire un bon investissement, certaines vérifications sont nécessaires avant l’achat d’un appartement. Pierre Marlair & Co vous détaille les points qui doivent retenir votre attenti...
Spacieuse maison avec piscine, vue campagne et prestations haut de gamme
Villa/maison/ferme à 5170 Lustin
VENDU
ID du bien : 2475
- Superficie210 m2
- Nombre de Chambres4
- Surface terrain846 m2
Documents de références
Téléchargez le plan cadastral Téléchargez le PEB Téléchargez les croquis détaillés Téléchargez le descriptifDétail
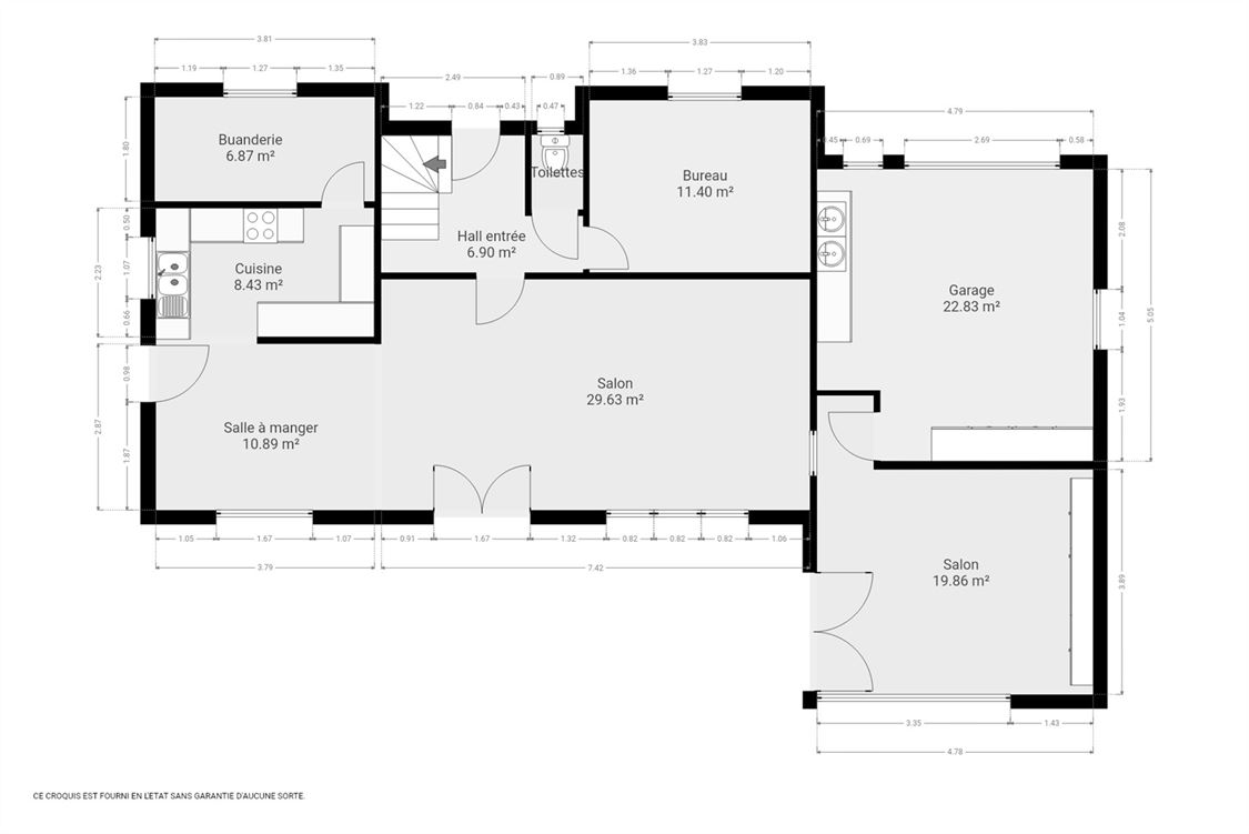
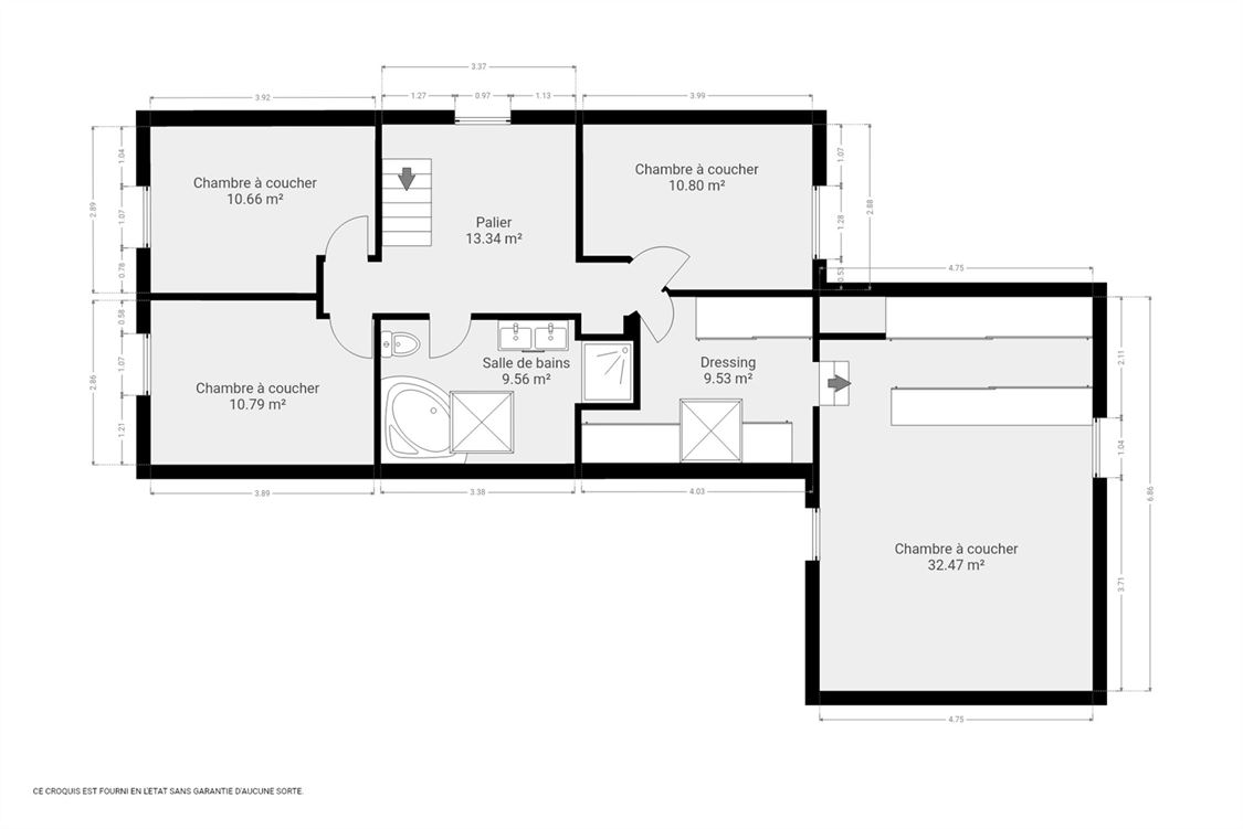
Un descriptif très complet avec documents téléchargeables est visible sur www.pierremarlair.be. Prise de RDV en ligne via notre site internet (onglet « prendre rendez-vous »). Derrière sa façade soignée, cette maison de ± 210 m² habitables (± 236 m² utiles) a été pensée, agrandie et améliorée année après année pour offrir un confort absolu. Construite en 1996 et agrandie en 2000, elle se situe au calme d’une voie sans issue, avec la campagne en toile de fond et le sud en façade arrière. Dès l’entrée, le ton est donné : hall d’entrée, bureau (idéal pour profession libérale ou pouvant servir de 5ème chambre), wc séparé, vaste espace salon/salle-à-manger/cuisine full équipée de ± 49 m², buanderie, salon “privé” pour les moments plus intimes, et garage. À l’étage : palier, quatre chambres spacieuses, un dressing et une salle de bains/douches. Les combles offrent un grand espace de rangement, tandis que le sous-sol abrite des vides ventilés. Et puis, il y a l’extérieur… un véritable paradis : magnifique terrasse, jardin arboré avec vue dégagée, piscine chauffée par pompe à chaleur, plage, douche solaire extérieure, tentes solaires, abri de jardin, vaste parking 5 places en pierre bleue. Tout est là pour profiter des beaux jours, entouré de sérénité. Côté technique, rien n’a été laissé au hasard : PEB B, installation électrique conforme, panneaux photovoltaïques, climatisation dans plusieurs pièces, borne de recharge, chauffage central au mazout avec citerne certifiée, citerne d’eau de pluie avec groupe hydrophore… Ici, confort et performance se conjuguent au quotidien. Une page se tourne… et si vous écriviez la suite ?
- Surface living49 m2
- Année de construction1996
- ChauffageC.C. au mazout
- Revenu cadastral1428€
- Salles d'eau2
- Garage : Oui
- Terrasse : 55 m2
Certification énergétique
Performance énergétique
157
Date de fin du certificat
21/03/2034
Code unique
20240321016064
Emission CO2
43

Partager ce contenu