Pour être sûr de faire un bon investissement, certaines vérifications sont nécessaires avant l’achat d’un appartement. Pierre Marlair & Co vous détaille les points qui doivent retenir votre attenti...
Immeuble avec travaux à réaliser selon permis
Immeuble de rapport à 5000 NAMUR
€ 999.000
ID du bien : 2522
- Superficie589 m2
- Nombre de Chambres9
- Surface terrain438 m2
Documents de références
Aléa inondation Plan cadastral immeuble 60 Plan cadastral immeuble 58 Plan cadastral général Plan de secteur 20240909 Fluxys DescriptifDétail
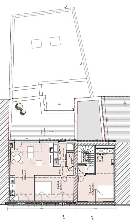
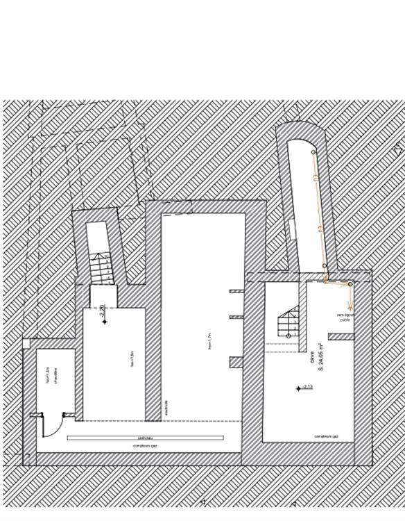
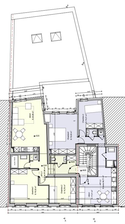
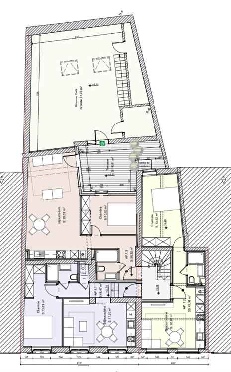
Un descriptif très complet avec documents téléchargeables est visible sur www.pierremarlair.be. Visite sur RDV en appelant le 081.840.840. Prix : faire offre à partir de 999.000€. Nous vous proposons un immeuble exceptionnel situé au centre-ville de Namur, dans un quartier en plein essor qui bénéficiera très prochainement d’un vaste projet de piétonnisation, favorisant ainsi le confort des riverains et l’attractivité commerciale. Cet immeuble est implanté au sein du très dynamique quartier universitaire à proximité immédiate de toutes les commodités urbaines (gare, commerces, services). L’immeuble se compose d’un commerce au rez-de-chaussée, un café emblématique de Namur, connu de tous pour son ambiance conviviale et son ancrage local (il sera libre pour la vente, sauf rachat de fonds de commerce à intervenir en sus), ainsi que de six appartements répartis sur plusieurs étages. Ces logements, à fort potentiel locatif, représentent une excellente opportunité d’investissement. Il est important de noter que l’immeuble devra être remis en conformité (actuellement en infraction d’urbanisme) au regard d’un permis d’urbanisme octroyé en 2022 (valable 5 ans) pour la configuration évoquée ci-avant. Idéal pour futurs commerçants souhaitant profiter d’un emplacement exceptionnel ou pour investisseurs cherchant à se positionner dans un quartier stratégique de Namur. Cet immeuble est une opportunité unique de participer à la dynamique d’un quartier en pleine transformation. Pour plus d’informations ou organiser une visite, contactez-nous rapidement !
- Année de construction1850
- ChauffageC.C. au gaz
- Revenu cadastral7291€
- Salles d'eau6
- Garage : Non
- Terrasse : 150 m2

Partager ce contenu