Pour être sûr de faire un bon investissement, certaines vérifications sont nécessaires avant l’achat d’un appartement. Pierre Marlair & Co vous détaille les points qui doivent retenir votre attenti...
Appartement 2ch avec balcon et jardinet priv.
Appartement à 5004 BOUGE
OPTION
ID du bien : 2628
- Superficie77 m2
- Nombre de Chambres2
Documents de références
Certificat énergétique Aléa inondation + axe de ruissellement.pdf ROI Plan Plan cadastral DescriptifDétail
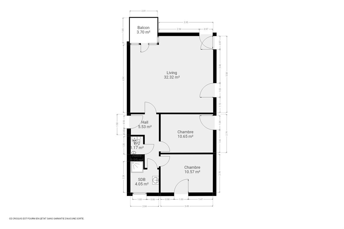
Le descriptif complet du bien est visible sur www.pierremarlair.be où certains documents peuvent être téléchargés. Prise de RDV en ligne via notre site (onglet « prendre rendez-vous ») : https://www.pierremarlair.be/oc/liste-proprietes/louer-1/2628-appartement-2ch-avec-balcon-et-jardinet-priv.html A Bouge, à proximité immédiate de toutes les commodités, des accès autorout. et des commerces, cet agréable appartement 2 ch. d’environ 77 m² offre un cadre de vie confortable. Il se compose d’un hall d’entrée, d’un vaste séjour d’environ 32 m² donnant accès à un balcon de ± 3,7 m², d’une cuisine équipée (taque au gaz 4 zones, hotte, frigo, congélateur et four neuf prochainement installé), de deux chambres, ainsi que d’une salle de douches avec meuble lavabo (emplacement pour machine à laver). Il est également composé d’un emplacement de parking, d’un jardinet privatif (entretien privatif) et de l’accès à un jardin commun. L’appartement bénéficie d’un chauffage central individuel au gaz via une chaudière à condensation, de châssis PVC double vitrage haut rendement et de compteurs individuels pour l’eau, le gaz et l’électricité. Performance énergétique : PEB B – 146 kWh/m².an (11.185 kWh/an – 27 kg CO₂/m².an). Le loyer mensuel s’élève à 900 €, avec une provision de 110 € pour les charges communes. Garantie locative : 2 mois de loyer via Korfine. Bail d’un an renouvelable. État des lieux réalisé par expert à frais partagés. Animaux non admis. Disponible à partir du 1er mai 2026.
- Surface living32 m2
- Année de construction2007
- ChauffageC.C. au gaz
- Salles d'eau1
- Garage : Non
- Terrasse : 3 m2
Certification énergétique
Performance énergétique
146
Date de fin du certificat
23/06/2027
Code unique
20170623017741
Emission CO2
27

Partager ce contenu